Private residence
Design consultancy
2024
Lisbon, Portugal
Imagining an architectural scenario to repurpose a fisherman’s house into a shelter for an artist’s home.
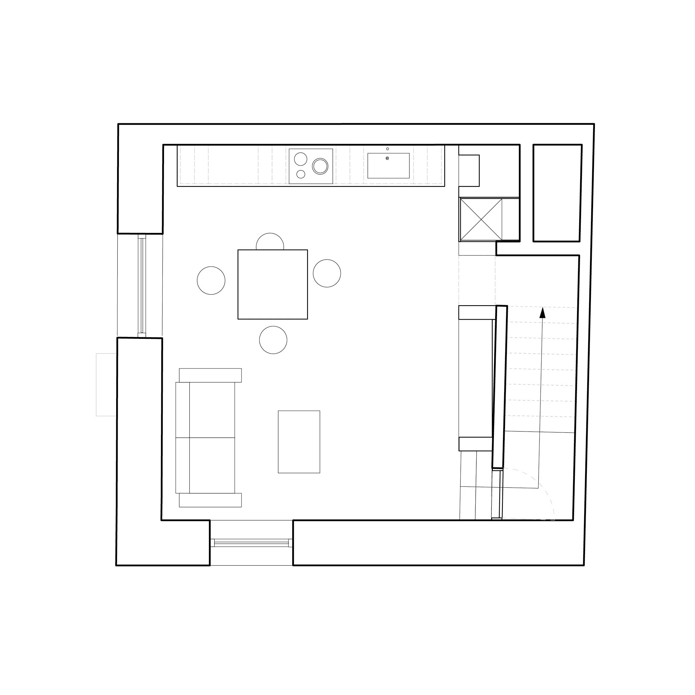
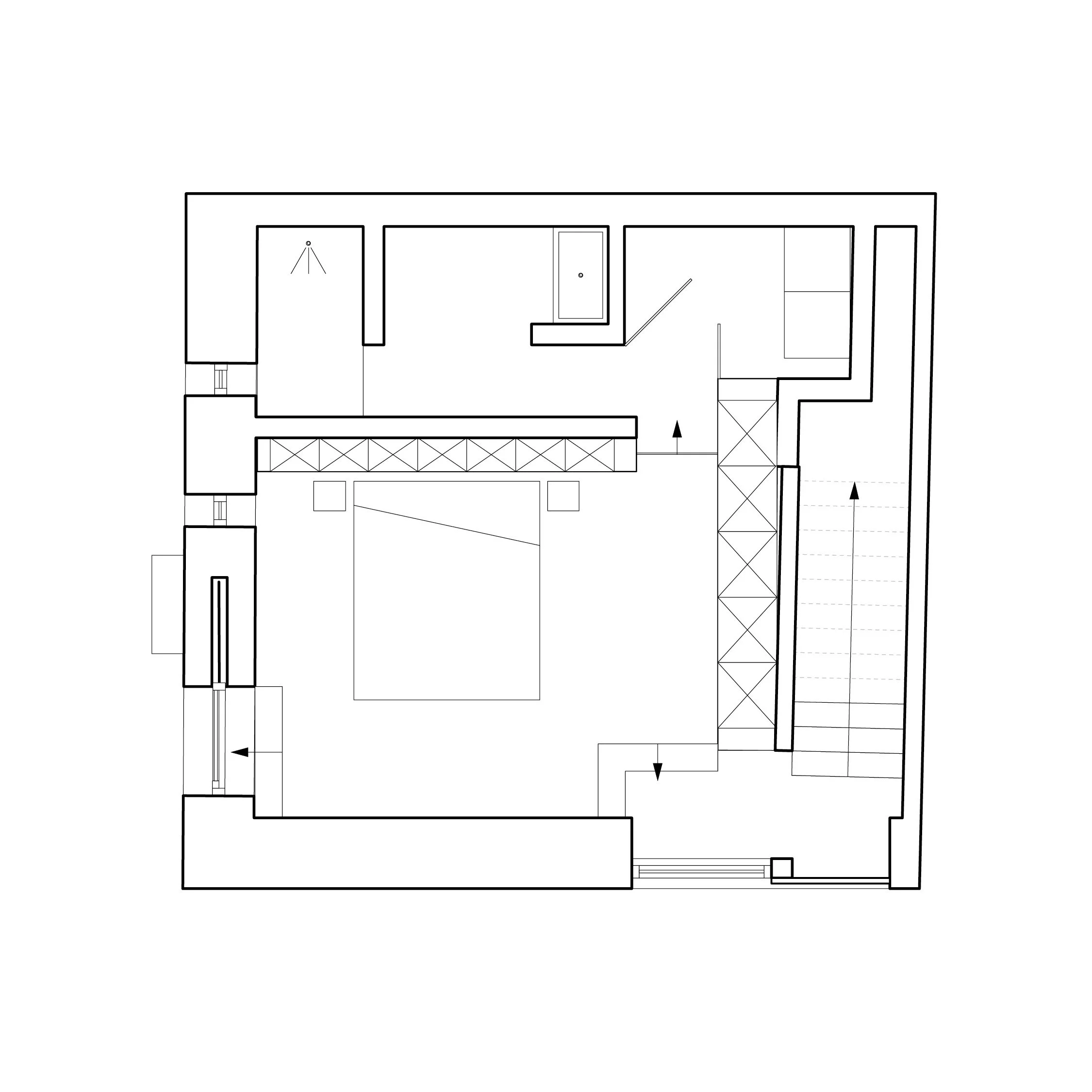
This project aimed to convert a 2 floor adjacent house on a street angle into one singular monolithically artist residence. Located on the south bank of the Tagus river estuary, in the district of Setúbal, the municipality of Barreiro is part of the metropolitan area of Lisbon.
The origin of the name Barreiro comes from old fishermen that exercised their craft in the Lisbons' bar waters and were therefore known by the name of Barreiros.
This was the original state of the building. The vibrant energy of its architectural morphology is defined by small workers’ house units.
This Barreiro artist residence is a seclusion, boldly isolated from the outside world, a space free from any intrusion. Stillness in space is essential in order to create a maximum atmosphere of introversion to travel inward and find deep recharge in a place called the “inner home”.
For any requests, contact us at:
studio@cedricetienne.com
bacK TO DESIGN

